Technoart Exterierový květináč z dlažby 60x30x60 cm, W1S1H
Obdélníkový květináč: délka 60 cm, šířka 30 cm, výška 60 cm
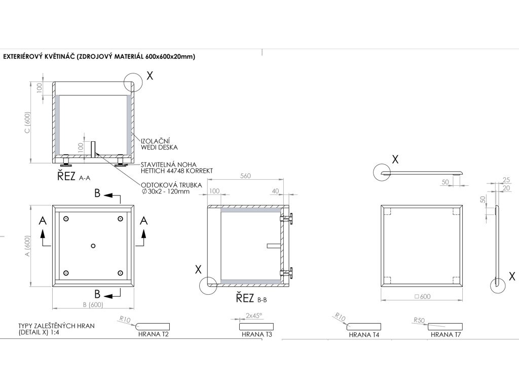
Exteriérové květináče jsou vyráběny ze slinutých mrazuvzdorných dlažeb v síle střepu 2 cm. Tyto zesílené dlažby mají vysokou mechanickou pevnost, díky tomu lze květináč zařadit do kategorie "Antivandal". Nepřeberné množství designů dlažeb vám umožňuje vybrat materiál, který se bude hodit do daného prostoru. Rozměrová variabilita je další výhodou. Květináče jsou konstruované tak, aby odolaly mrazu. Stěny mají opatřeny vložkou proti přehřátí kořenového systému rostlin, která současně zajišťuje pružnost proti zamrznutí. Stavitelné nohy dokáží vyrovnat nerovnosti podkladu a odtokový otvor odvede vodu při dlouhotrvajících deštích. Na květináče je možné objednat "záklopky", které chrání rostliny v zimě (trávy), nebo dáváte-li květiny přezimovat, tak zaklopíte květináč a může se stát ozdobnou kamenou kostkou. Ověřená konstrukce a funkčnost je patentem TechnoArt®.
-
Exteriérové květináče mají svá specifika
-
Je možné dodat květináče v typizovaných rozměrech nebo vyrobit rozměr na zakázku
-
Pro exteriérové květináče je vhodné použít materiál v síle střepu 20 mm
-
Nedoporučujeme používat tmavé barvy slinuté dlažby - půda i rostliny se přehřívají
-
Na vnitřní stěny květináče doporučujeme vložit polystyren - chrání proti přehřívání, ale i proti promrzání půdy
-
Exteriérový květináč má odvodňovací otvory 100 mm nad jeho dnem - z důvodu zamrzání
Doplňkové parametry
| Kategorie: | Exteriérové květináče |
|---|---|
| Záruka: | 2 roky |
| Tloušťka dlažby: | 2 cm |
| Typ: | Exterierový |
Hodnocení produktu
Buďte první, kdo napíše příspěvek k této položce.
Diskuze
Buďte první, kdo napíše příspěvek k této položce.
